Descargar este artículo en formato PDF
Pérez Calderón, Juan Carlos
1998 Criptas del convento de Santo Domingo, La Antigua Guatemala: Uso y ubicación. En XI Simposio de Investigaciones Arqueológicas en Guatemala, 1997 (editado por J.P. Laporte y H. Escobedo), pp.635-645. Museo Nacional de Arqueología y Etnología, Guatemala (versión digital).
45
CRIPTAS DEL CONVENTO DE SANTO DOMINGO,
LA ANTIGUA GUATEMALA:
USO Y UBICACIÓN
Juan Carlos Pérez Calderón
«Construido con posterioridad a 1543, fecha del asentamiento de la ciudad de Santiago de Guatemala en el valle de Panchoy, el convento de Santo Domingo fue sin duda alguna, uno de los más importantes en la antigua capital del Reino de Guatemala…». Con las anteriores anotaciones inicia Miguel Valencia su trabajo sobre la arqueología y la cerámica en el Convento de Santo Domingo de La Antigua Guatemala. Así como este relato, existen muchos otros que hablan de la importancia y magnitud de la Orden Dominica, sus edificaciones y sus bienes.
Zoila Rodríguez (1992), citando a Ximénez anota que tanto la iglesia como el convento poseían gran cantidad y calidad de obras artísticas: esculturas, pinturas al óleo, candelabros de plata, madera bellamente tallada. Se menciona también una custodia de plata sobredorada, así como una lámpara también de plata colocada frente al altar mayor, que pesaba alrededor de cincuenta kilos. Entre sus obras de arte también resaltan las imágenes de la Virgen del Rosario, el Señor Sepultado y el Santo Cristo, hecho de corazón de caña de maíz, tallado por Fray Félix de Mata.
Los relatos anteriores dan una idea de la importancia y calidad artística del Convento de Santo Domingo. Sin embargo, la excelencia no era solamente en el aspecto material, grandes personalidades pertenecieron a esta orden, entre ellas Fray Bartolomé de las Casas y Fray Francisco Marroquín entre otros, quienes tuvieron importante participación en la vida colonial guatemalteca.
EL CONVENTO
En el Convento de Santo Domingo vivieron permanentemente gran cantidad de personas. Aparte de los monjes, estaban los novicios y el personal de servicio. Dentro de sus criptas fueron sepultadas distinguidas personalidades de la sociedad colonial, así como los frailes y novicios que ingresaban a la orden.
Recordemos que para esta época no había cementerios propiamente dichos y las personas eran enterradas en los templos o camposantos ubicados cerca de los mismos. También se tenía la creencia de que mientras más cerca de los lugares importantes dentro de un templo se enterrara a una persona, más cerca de Dios se encontraría. Sin embargo, para ser enterrado cerca del Altar Mayor, capillas, altares y criptas, era necesario pagar su derecho en dinero o materiales para la construcción de recintos conventuales, o también por servicios prestados a la orden o templo.
Las personas de pocos recursos económicos tenían que conformarse con enterrar a sus muertos en la periferia de la iglesia (Pérez 1996). Rodríguez y Wright (1996) apuntan que las familias adineradas solicitaban ser enterradas en los mencionados lugares o pedían la construcción de criptas o capillas de enterramiento y/o velación especiales para ellos y sus familias. Así, «las personas pedían ser enterradas en lugares especiales como: 1) Capilla Mayor, generalmente al pie del Altar Mayor, en el sector del Evangelio (lado izquierdo) o Epístola (lado derecho); 2) Capillas Laterales (generalmente a cargo de alguna Cofradía o Hermandad); 3) en el cuerpo del templo cuando no habían capillas laterales (generalmente al pie de la pila del agua bendita, o sea cerca del soto coro); 4) en el caso de existir criptas, éstas eran usadas para tales menesteres y las hubo en medio de la Capilla Mayor (como en Catedral), Capillas Laterales (como en Santo Domingo) y en el cuerpo del Templo (como en Capuchinas, Santa Clara y San Sebastián (Mario Ubico, Comunicación Personal 1996).
Cada uno de los párrocos confirmó por escrito que los curas de su parroquia habían recogido todos los huesos de las iglesias y que se habían metido en cajas, todos juntos dándoles cristiana sepultura (Archivo Arquidiocesano Folio 107, Tomo 44 T5-70). Es hacia 1819 cuando el Cabildo propone por primera vez la creación de un cementerio en las afueras de la ciudad.
En Santo Domingo, las excavaciones de 1995 y 1996 han evidenciado en las afueras de la iglesia dos lugares que contienen gran cantidad de huesos humanos, siendo entierros indirectos primarios y algunas veces directos primarios, posiblemente sean los camposantos que se mencionan anteriormente, o bien los lugares que los párrocos habilitaron para los restos errantes o dispersos también mencionados con anterioridad. Sin embargo, no se ha realizado hasta la fecha una investigación más minuciosa.
LAS CRIPTAS
¿Qué es una cripta? Existen varias definiciones que nos permitirán tener una idea de ello: 1) lugar subterráneo en el que se hacían sepulturas; 2) piso subterráneo de una iglesia; 3) capilla subterránea que sirve de cámara sepulcral.
¿Qué es una capilla? Es un pequeño edificio religioso aislado o lejano, formando parte de un templo.
En base a lo anterior, podemos decir que una cripta es aquel lugar subterráneo que puede ser destinado o no para la deposición de restos humanos.
Las criptas se pueden dividir en: 1) Criptas de Cimentación; 2) Criptas Estructurales; 3) Criptas de Enterramiento.
CRIPTAS DE CIMENTACIÓN
Tenían como fin principal la protección, o bien servirle de cimiento a construcciones más grandes. También se construyeron en la contención de pozos de agua. Esta no tenía uso funerario. Se pueden observar en el Convento de San Francisco.
CRIPTAS ESTRUCTURALES
Servían principalmente para nivelar un terreno, sin embargo, algunas tuvieron uso funerario. También hay ejemplo de este tipo en el Convento de San Francisco.
CRIPTAS DE ENTERRAMIENTO
1. Criptas Conventuales: eran estructuras grandes, cuyo uso fue interno, o sea que únicamente se enterraban aquí a frailes o monjas. Ejemplo de este tipo lo tenemos en Santa Clara, Recolección, Capuchinas y Santo Domingo.
2. Criptas para «Mecenas»: se les ha llamado así debido a que las personas que las mandaban hacer, tenían los suficientes recursos económicos como para financiar una obra de semejantes magnitudes y características. Generalmente se encuentran cercanas al Altar Mayor o alguna capilla importante. Se estima que en estas se enterraban a ciertos personajes importantes de la época y a sus familiares. Este tipo lo encontramos en Capuchinas, Concepción, Catedral y Santo Domingo.
3. Nichos de Enterramientos: Aunque no guardan similitud arquitectónica con lo que conocemos como cripta, estas construcciones constituían lugares especiales donde eran depositados los restos de importantes personalidades de los conventos, como pudieron ser los priores. Estos nichos no eran bajo tierra, sino que se hacían en lugares especiales de los conventos y templos. El ejemplo lo tenemos en Santo Domingo.
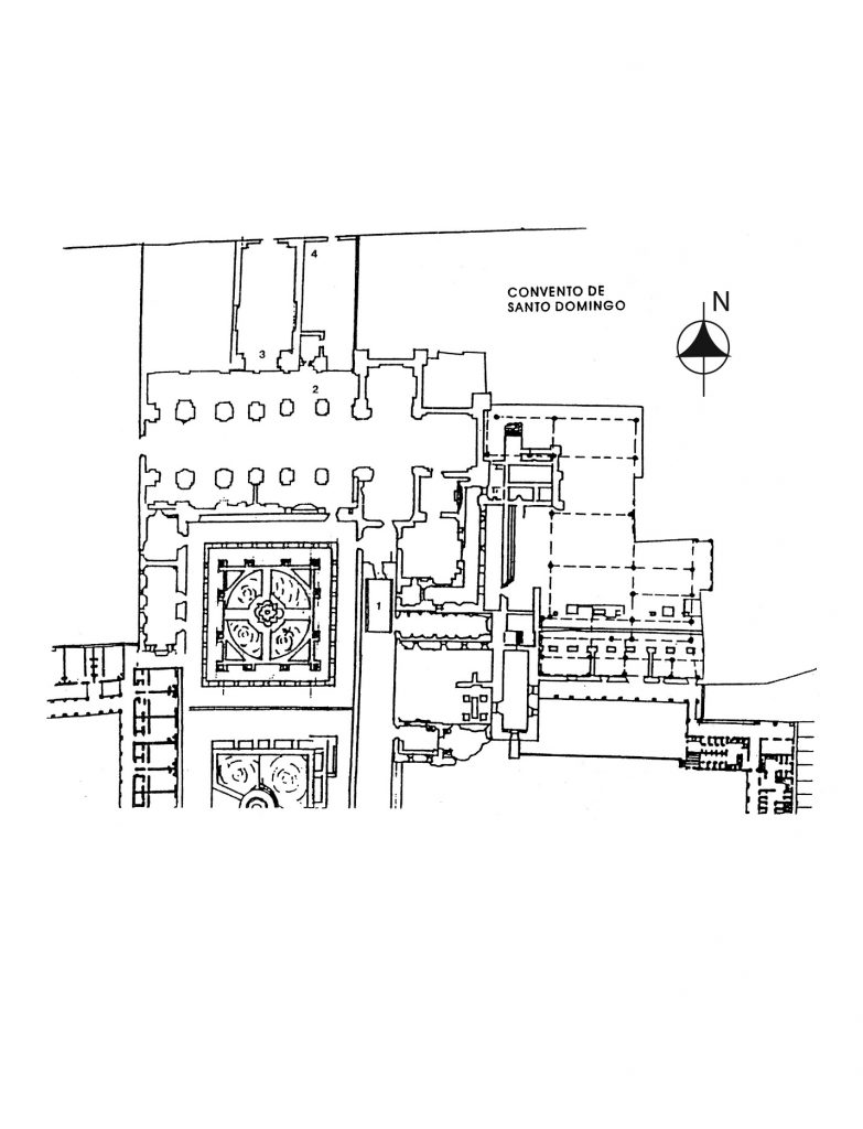
Las investigaciones que desde 1989 se vienen realizando en el convento dominico han evidenciado hasta ahora cuatro criptas de diferentes dimensiones y características (Figura 1).
CRIPTA CONVENTUAL
Denominada originalmente Cripta 1 en la temporada 1989. Tiene un ancho de 7.50 m por un largo de 16.50 m; fue descubierta el 25 de septiembre de 1989, hallándose gran cantidad de restos óseos errantes (entierros secundarios indirectos), presenta junto al muro sur un espacio circundado por ladrillos que sirvió como osario. Se estima que los cuerpos eran depositados en posición anatómica al principio y que pasado el tiempo eran trasladados al osario con el objetivo de dar cabida a otros cuerpos. La cripta tiene su acceso hacia el norte, con 14 escalones reconstruidos de 34 cm de huella por 20 cm de contrahuella. En los muros de dicha cripta se encontraron las siguientes inscripciones: 1) Muro este «Francisco Juárez 3 de junio de 1792; 21 de agosto Fray …» y «A 12 de junio de 1812 estuvi aquí José Ayala»; 2) Muro oeste: «Ido Fray Ipólito de Aguilera».
Se necesitaron 10,000 ladrillos para la reintegración de la bóveda y un tiempo de tres meses para la finalización de este trabajo (Figura 2).
CRIPTA DEL MONJE
Llamada al inicio Cripta 2 (en la temporada 1995), tiene un ancho de 2.80 m y un largo de 3.75 m, también localizada en el sector D. Tiene su acceso hacia el este, contando con cinco escalones de 40 cm de huella por 30 cm de contrahuella. Aquí se encontraron un mínimo de 36 personas entre niños y adultos (hombres y mujeres) y ancianos. Tomando como referencia los dientes incisivos que pertenecen al tipo de forma de pala, se estima que corresponden posiblemente a personas indígenas en un 80%.
En el muro norte se observa un tapial de adobe de 1.35 m de alto por 0.76 m de ancho, donde se realizó un registro, encontrándose cinco gradas de 18 cm de huella por 20 cm de contrahuella, orientadas norte-sur. La evidencia parece indicar que las gradas sirvieron en algún momento para ingresar a la cripta. También se hizo un registro en la parte superior de la misma (actual piso exterior) encontrándose el ingreso original y el tapial mencionado a 20 cm de profundidad del piso actual, bajo un piso de baldosa (Figura 3).
CRIPTA DEL CALVARIO
Denominada originalmente Cripta 1 (en la temporada 1996), se localiza hacia el norte de la nave central de la iglesia, sector H-1. Se localizó el 25 de septiembre de 1996. Se trata de una cripta con orientación este-oeste de 15 m de largo por 3 m de ancho en el extremo oeste y 4 m de ancho en el extremo este. En la parte norte cuenta con una capilla de 2 m por 2 m, así como cinco «bancas» de 2, 2.5, 2, 2.2 y 1.8 m de largo respectivamente y un ancho de 0.85 m cada una, se piensa que ésta sirvió como capilla de velación en lo que se habilitaba el lugar de enterramiento. En la parte sur y frente a la capilla se encuentra el acceso con 17 escalones de 10 cm de huella por 10 cm de contrahuella, orientadas norte-sur.
En la pared oeste fue elaborado aproximadamente hacia finales del siglo XVII una escena de la crucifixión de Cristo. Está elaborada en estuco y pintada en colores minerales. Contando con las siguientes figuras:
– Cristo Crucificado (en relieve)
– Virgen María (en relieve)
– María Magdalena (en relieve)
– San Juan (en relieve)
– En los extremos: Pinturas de Dimas y Gestas
– Arriba: El sol y la luna con estrella, cuyo cielo amarillo y negro se unen hacia el cénit
– Querubines y flores pintados y en relieve
Descubierta la Cripta del Calvario fue tarea del personal profesional emprender los trabajos de conservación y restauración del mismo. Así, Margarita Estrada (restauradora) y Víctor Sandoval (arquitecto) iniciaron las actividades correspondientes para su preservación.
El que escribe realizó excavaciones en los muros aledaños al ingreso (parte exterior) donde se localizaron enterramientos de individuos indígenas o mestizos y españoles, algunos de los cuales presentaban restos de cajas o ataúdes (Pérez 1997).
En esta cripta se encontró la siguiente inscripción: «Juan Sánchez murio a 8 del mes de Enero de 1792» (?); la fecha no es legible del todo. También se encontraron símbolos de cruces y otras figuras hechas con humo de candela.
Para la reposición de los materiales de la bóveda de esta cripta se utilizaron aproximadamente 14,000 ladrillos y un tiempo de 2.5 meses (Figura 4).
CRIPTA DE LOS CANDELEROS
Llamada al principio Cripta 4 (en la temporada 1997), tiene un ancho de 2.50 m y un largo de 2.75 m; fue descubierta el 5 de febrero de 1997 (Figura 5). Aquí se encontraron más de 34 candeleros denominados de platillo, localizados sobre el piso de mezclón de esta construcción. Los candeleros son los únicos de su tipo encontrados hasta el momento en las excavaciones de Santo Domingo. (Figura 6).
No se encontraron restos óseos al interior de la cripta. Sin embargo, se encontraron restos en el exterior de los muros. Posiblemente personas indígenas (tomando como referencia las piezas dentales). Importante fue la localización de un cuenco cerámico de engobe negro, encontrado invertido sobre restos óseos de un niño, definitivamente una ofrenda indígena en pleno periodo colonial (Pérez 1997). Esto nos hace pensar que seguramente se realizó aquí algún tipo de culto o rito que no necesariamente era católico.
Tiene como único acceso una pequeña «ventana» de 60 cm de alto por 40 cm de ancho en el muro sur.
CONCLUSIONES
La finalidad de este trabajo es tratar de dar una primera explicación del pensamiento colonial en el Reino de Guatemala al encontrar respuestas a la manera de ver la vida y la muerte. Es precisamente el fenómeno de la muerte que trae consigo la realización del último acto social de un individuo, el enterramiento, que desde hace miles de años es acompañado de una serie de ritos y manifestaciones culturales de muy variada forma, pero que en esencia reflejan el asombro y hasta la incredulidad de las sociedades.
La sociedad colonial no fue la excepción, contando con actos de enterramiento particulares, a lo anterior debo agregar que los habitantes de Santiago tuvieron que enfrentarse más de una vez a catástrofes naturales como terremotos e inundaciones y principalmente a enfermedades en las que morían muchas personas, por lo que las autoridades tuvieron que buscar soluciones inmediatas ante tales acontecimientos. Una de las soluciones fue la implementación de más cementerios, que se ubicaban en los alrededores de algunos templos. Así, el Convento de Santo Domingo en La Antigua Guatemala tuvo un sistema de enterramiento que respondía parcial o totalmente a las necesidades ideológicas y económicas de la época.
El uso de criptas fue de carácter especial en la sociedad colonial de Guatemala y por tanto en la del Convento Dominico. Pienso que en las criptas primero se enterraba a las personas en posición anatómica, en ataúdes y/o nichos cavados para el efecto. Pasado algún tiempo, los restos eran extraídos y colocados todos juntos en los osarios de cada una de las criptas, donde permanecían indefinidamente. Esto se llevaría a cabo probablemente para dar cabida a nuevos enterramientos. Este caso pudo haber sido el de la Cripta Conventual y la del Calvario.
En otras criptas se depositaban únicamente los restos en forma dispersa o en pequeñas cajas de madera luego de ser removidos de su sepultura original. Este bien podría ser el caso de la Cripta del Monje, ya que no tiene osario y los restos encontrados estaban muy dispersos, además se encontraron restos de cajas de madera y posibles forros de tela.
La Cripta de los Candeleros es distinta a las demás, hay que recordar que no se encontraron restos óseos en su interior y que como único acceso tiene una pequeña ventana hacia el muro sur. Agregando a ello los candeleros de platillo, asociando los entierros indígenas localizados en los alrededores del recinto, así como la ofrenda cerámica, sugiero algún tipo de elemento ritual especial (no necesariamente católico) que está haciendo de esta cripta no un lugar de enterramiento, sino en alguna manera de culto.
Las criptas, en general, permiten tener una idea de la diferencia de niveles sociales, donde las personas con más recursos económicos podían ser enterradas en criptas, capillas y recintos especiales. Por otra parte, los religiosos de las órdenes tenían estructuras especialmente destinadas para ellos (o sea las criptas conventuales), así como nichos de enterramiento. Por el contrario, las personas que no contaban con cierto nivel económico tenían que conformarse con entierros sencillos que seguramente eran llevados a cabo en los cementerios en las afueras de los templos.
AGRADECIMIENTOS
Por la invaluable colaboración y apoyo a las siguientes personas: Juan Pablo Herrera Sánchez, Zoila Rodríguez, José H. Paredes, Edgar Carpio R., Mario Ubico y Víctor Sandoval. También al Consejo para la Protección de La Antigua Guatemala y al Centro Cultural Casa Santo Domingo.
REFERENCIAS
Pérez Calderón, Juan Carlos
1996 Informe de Práctica de Campo. Proyecto Arqueológico Santo Domingo, Antigua Guatemala.
1997 Apuntes Breves Sobre Antropología Física. Revista Informe Arqueológico Año 2, No.1. Escuela de Historia, Universidad de San Carlos, Guatemala.
1997 Informe del Proyecto de Arqueológico Sansare, Extensión Huité-Teculután, Temporada de Campo Junio-Julio 1996. Escuela de Historia USAC, Guatemala.
Rodríguez Girón, Zoila
1992 Programa de Arqueología Colonial: investigaciones arqueológicas en el Convento de Santo Domingo, Ciudad de Antigua Guatemala. Revista Estudios 2/92:73-89. IIHAA, Escuela de Historia, Universidad de San Carlos, Guatemala.
Rodríguez Girón y Lori Wright
1996 Prácticas de enterramiento en la Antigua Guatemala y la Nueva Guatemala de la Asunción durante la época Colonial y Republicana (1543-1836). Apuntes Arqueológicos 4 (2):113-147. Área de Arqueología, Escuela de Historia, Universidad de San Carlos, Guatemala.

Figura 1 Planta del Convento de Santo Domingo

Figura 2 Cripta Conventual

Figura 3 Cripta del Monje

Figura 4 Cripta del Calvario

Figura 5 Cripta de los Candeleros

Figura 6 Candelero de Platillo

