Descargar este artículo en formato PDF
Fernández Marquínez, Yolanda
1994 Historia arquitectónica del Grupo May, Oxkintok, Yucatán. En VII Simposio de Investigaciones Arqueológicas en Guatemala, 1993 (editado por J.P. Laporte y H. Escobedo), pp.543-557. Museo Nacional de Arqueología y Etnología, Guatemala.
47
HISTORIA ARQUITECTÓNICA DEL GRUPO MAY, OXKINTOK, YUCÁTAN
Yolanda Fernández Marquínez
El Grupo May se localiza en lo que se ha definido como área central de la ciudad de Oxkintok. Los grupos más cercanos, a los cuales se une mediante dos sacbeob, son el Grupo Dzib al noroeste y el Ah Canul al noreste.
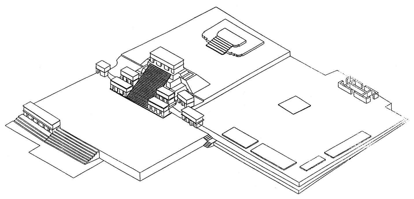
El Grupo May se asienta sobre una plataforma artificial de 13,000 m² (plataforma basal) que aprovecha una elevación natural del terreno. Sobre ella se distribuyen 12 estructuras abovedadas, cuatro plataformas, dos unidades habitacionales y dos adoratorios. Además hay cuatro escaleras, de distintas características e importancia, que facilitaban el acceso desde el exterior del grupo a diferentes puntos del mismo. La mayoría de estos elementos arquitectónicos se distribuyen en cinco plazas: Norte, Noreste, Sureste, Sur y Suroeste.
La configuración morfológica y arquitectónica del grupo, que actualmente podemos observar, es el resultado de los diferentes recrecimientos y modificaciones que fue sufriendo desde el Formativo Tardío hasta el Clásico Terminal.
sintetizar los resultados de la investigación que hemos llevado a cabo en el Grupo May mediante la exposición de su historia arquitectónica, la cual fue elaborada contemplando otras manifestaciones culturales además de las puramente constructivas, como los pisos de plaza, la cerámica, los objetos de concha y jade, etc.
La información aportada por cada estructura se incorporó a los perfiles generales que se habían realizado del grupo, añadiéndose posteriormente los datos de los pozos de plaza. Esto nos permitió correlacionar las diferentes estratigrafías y sumar ésta información a la aportada por los materiales culturales. Finalmente, se dibujaron una serie de plantas del grupo que corresponden a distintos momentos de desarrollo del mismo. Los alzados se realizaron a continuación basándonos en los edificios excavados, en el estudio minucioso de los derrumbes y en comparaciones con edificios similares que estuvieran mejor conservados (Figura 1).
El último paso fue encajar la historia arquitectónica del Grupo May en la secuencia cultural propuesta por el Proyecto para la ciudad de Oxkintok.
FASE SIHIL
La fase Sihil es la más temprana con una cronología aproximada del 500 al 300 AC, situándose en ella el origen del Grupo May.
Figura 1 Plano general del Grupo May.
Aparecen señalados los ejes normativos ideales definidos en este grupo
Los materiales pertenecientes a esta fase se concretan en restos cerámicos y lo más sobresaliente es su distribución en torno a la Plaza Suroeste. Estos tiestos se pueden incluir dentro de la esfera Mamom, con la aparición de grupos tan característicos como Zapote o Juventud.
Es importante señalar que en la Plaza Suroeste es donde se ha registrado el afloramiento de laja caliza con la cota absoluta más alta del grupo y donde se ha podido definir una meseta sobre la cual se realizó el primer asentamiento tras pequeñas tareas de nivelación. Este emplazamiento primigenio se encontraba rodeado de tierras fértiles de alta productividad.
En la zona central de la ciudad de Oxkintok, únicamente se recuperaron fragmentos cerámicos de la fase que nos ocupa en el extremo septentrional del Grupo Ah Canul. Parece, pues, que la ocupación del sitio en la fase Sihil debió ser muy dispersa y se concentraba en las elevaciones naturales del terreno.
FASE BUT
Entre el 300 AC y el 300 DC se desarrolló la fase But. Lo más destacable fue la aparición de la primera manifestación arquitectónica que dio pie al inicio de la numeración de los estadios constructivos.
Así pues, en el estadio 1 del Grupo May se construyó una plataforma basal cuyo paramento norte se caracterizó por ser ataludado y construido con piedras de la labra irregular y de formas heterogéneas. Su localización no es arbitraria, ya que se encuentra inmediatamente antes de una brusca elevación de la roca caliza. Así, en la base de la plataforma la roca aflora a 41 m SNM y 3 m al sur del límite de la plataforma esta cota se eleva a 45 m SNM.
Con esta construcción los arquitectos consiguieron que con una inversión relativamente pequeña de trabajo, el resultado final fuera una impresionante plataforma que en otro sector hubiera requerido una gran obra de nivelación artificial.
Dentro de Oxkintok, otros grupos también presentan ocupación durante la fase But. La Plaza Noroeste del Grupo Dzib aportó materiales cerámicos relacionados con una posible nivelación sobre un afloramiento de la roca caliza, semejante a la del May. El Grupo Ah Canul, también asentado sobre una elevación de roca caliza, se suma a este aumento en los materiales del Preclásico Tardío.
FASE ICHPA
Para el Clásico Temprano se ha definido en Oxkintok la fase Ichpa, que transcurrió entre el 300 y el 550 DC. El panorama cambia fundamentalmente, se registra un aumento importante de todas las manifestaciones culturales, la arquitectura se diversifica y aparecen desde pequeñas plataformas habitacionales, hasta basamentos con una funcionalidad probablemente ritual, además de edificios abovedados.
En el Grupo May se incluyen los estadios arquitectónicos 2 y 3. El estadio 2 es, sin duda, el más importante desde el punto de vista constructivo. Aparecen ya como tales las Plazas Suroeste, Sur y Norte. Estas dos últimas sufrirían distintos recrecimientos en periodos posteriores.
Partiendo de las estructuras más sencillas, nos encontramos en la Plaza Suroeste con cuatro plataformas de escasa altura consideradas como habitacionales (MA-4, 16, 17 y 18), un adoratorio situado al este y la estructura MA-5 que presentaba paredes de mampostería, al menos, hasta una altura de un metro. La distribución de estas estructuras recuerda al Patrón de Plaza 2 definido por Becker (1986:8) para Tikal. A través de este patrón se ha podido determinar que muchos de los conjuntos habitacionales se caracterizan por la presencia de un edificio ritual centrado en el lado este del patio del grupo. El ejemplo más similar al nuestro es el del Grupo 4G-1 (Becker 1986:10, figura 3).
En la Plaza Sur se levantaron las dos estructuras más significativas de este estadio y del siguiente, nos estamos refiriendo a la M MA-1sub y a MA-7sub.
La Estructura MA-1sub tiene dos plantas, la primera de las cuales posee cuatro o cinco crujías longitudinales en dirección este-oeste y dos transversales norte-sur. Es posible que la edificación no se realizara en un único momento, ya que la dimensión de los cuartos y determinados detalles de constructivos varían mucho de los cuartos centrales interiores a los superiores.
Las características arquitectónicas de esta estructura pertenecen al estilo denominado Oxkintok Temprano, con bóveda escalonada, muros de mampostería irregular, recubrimiento de estuco liso en colores predominantemente rojo y blanco (Figura 2; Fernández 1992b).
Dentro de Oxkintok existen otros edificios excavados como la Estructura CA-3 (Ligorred 1989) y el Satunsat (Rivera 1987b; Rivera y Ferrándiz 1989), que presentan características similares a las descritas para el MA-1sub, tanto desde el punto de vista morfológico como técnico.
En el norte de Yucatán es difícil encontrar edificios de estilo Oxkintok Temprano; sin embargo, y con las precauciones necesarias que impone la falta de excavación, Pollock (1980) recoge estructuras de diversos sitios como el Grupo Norte de Yakalmai, la estructura este de Bakna y un edificio en Chelemi, que pudieron ser coetáneos a la Estructura MA-1sub.
Para la región Río Bec, Gendrop (1983:71-72) recoge una serie de edificios donde se han documentado pasadizos con bóvedas escalonadas en su interior como los edificios I, IV y VIII de Becan, el I de Xpuhil o el I de Manos Rojas. El autor describe la cantidad de pasadizos, túneles y cámaras que a menudo perforan la masa sólida de algunos basamentos (o de las mismas torres) y que en nuestra opinión pudieran tener algunos rasgos comunes con los de las estructuras mencionadas en Oxkintok.
La Estructura MA-7sub, es un basamento ataludado con dos cuerpos y esquinas redondeadas, que cierra la plaza por el sur y del cual se ha conservado únicamente la esquina noroeste.
Sobre la Plaza Norte se han documentado restos cerámicos y algunas modificaciones arquitectónicas que afectaron a la cara este de la plataforma basal original.
El estadio 3 (Figura 3) incluye la remodelación de la Estructura MA-7sub que fue cubierta por la MA-7. El edificio nuevo continúa siendo un basamento ataludado con esquinas redondeadas, pero de mayores dimensiones que el anterior.
Los rasgos arquitectónicos del MA-7 son más característicos de Petén que de las Tierras Bajas septentrionales, donde no es fácil encontrar estructuras con la línea curva como protagonista. Esta estructura sería similar a la registrada en el Grupo A de Uaxactun (Valdés 1989: figuras 10 y 11).
Desde el punto de vista arquitectónico, la fase Ichpa se caracteriza por la creación de las auténticas bases constructivas del grupo. Aparece la arquitectura monumental y religiosa, contando ya con ejemplos que señalan la diversidad funcional. En periodos posteriores todos los edificios erigidos en este momento serán reutilizados y aprovechados para nuevas construcciones.
Además de los aspectos arquitectónicos conviene resaltar otras cuestiones, como la cerámica, donde encontramos tipos como Balanza Negro y Dos Arroyos Naranja Policromo, que parecen ser de importación petenera junto con otros de fabricación autóctona como Timucuy Naranja Policromo o Maxcanu.
En cuanto a objetos de élite, destaca la Ofrenda 4 donde se documentaron numerosas piezas de jade y concha, espinas de manta raya, cerámica, etc. Algunos de estos objetos son muy similares a los documentados en Río Azul o Tikal.
Recapitulando los datos aportados por las distintas manifestaciones culturales para esta fase podríamos decir que los rasgos arquitectónicos y artísticos presentan claras similitudes con el centro de Petén, zona con la que parece existir una fluida conexión y comunicación, recogiéndose sus modas, gustos decorativos y modelos constructivos. Asimismo, es importante destacar el crecimiento generalizado que registra Oxkintok para este momento.
FASE OXKINTOK REGIONAL
La siguiente fase de la ciudad es la denominada Oxkintok Regional, que se extendió entre el 550-630 DC. La arquitectura, con la aparición del estilo Proto Puuc A, registró tanto variaciones técnicas, como espaciales, funcionales, etc. Es decir, que se produjo un cambio profundo que afectó a todos los niveles de la arquitectura.
En el Grupo May se definió el estadio 4 (Figura 4), durante el cual se registró una gran actividad constructiva. Se amplía la Plaza Norte y se edifica un nuevo acceso principal en su límite septentrional.
Figura 2 Reconstrucción ideal de la Estructura MA-1 sub
Figura 3 Reconstrucción ideal del Grupo May en el estadio 3
La Estructura MA-1sub es sometida a una importante remodelación, se suprimen sus naves perimetrales y en las caras este y oeste aparece una composición de tablero con zócalo que se interrumpe para dar paso al cuerpo ataludado que cubrió la mitad meridional de la MA-1sub. La escalera exenta y sin alfardas, que se desarrolla en la cara septentrional, finalizaba en un templo con tres vanos que daban acceso al interior de una estructura abovedada con dos estancias (Figura 5).
En cuanto a la funcionalidad del MA-1, parece claro que estaba relacionada con aspectos religiosos y funerarios, como se deduce de las tres tumbas localizadas en el interior del cuarto norte.
La Estructura MA-7 fue sometida a diversos cambios que afectaron a su mitad meridional, estos tuvieron un carácter estético más que de su distribución espacial. Sin embargo, es importante señalar que los cambios de la Estructura MA-1 y de la Plaza Norte apuntan hacia una pérdida de importancia de la Plaza Sur en favor de aquella.
La Plaza Suroeste, de carácter eminentemente habitacional, no se potencia durante este periodo. La escasez de restos cerámicos y la falta de asociación a niveles de estructuras, nos inclinan a pensar en práctico abandono del sector.
En Oxkintok la actividad constructiva afectó a todos los sectores excavados por el proyecto. Así, en el Grupo Ah Canul se excavó la Estructura CA-4 (Vidal 1992) que presentó en su fachada una composición de tablero con zócalo muy semejante a la documentada en la Estructura MA-1.
La Estructura DZ-8sub y la esquina noreste de la plataforma sobre la que se asienta la Plaza Noroeste del Grupo Dzib, también registraron talud con zócalo (Rivera, Guío y Mugarte 1992; García Barrios 1992).
Las Estructuras MA-1, CA-4 y DZ-8sub son basamentos piramidales, de distinta altura, que sustentaron sendas estructuras en sus cimas y tuvieron un carácter indiscutiblemente religioso. En todos los casos, la escalera nace en una gran plaza hacia la cual se orientan las edificaciones y que podría estar apuntando hacia actividades que implicaran a un gran número de personas.
Los ejemplos de talud con zócalo en Yucatán son difíciles de encontrar fuera de Oxkintok. En Dzibilchaltun (Andrews IV y Andrews V 1980:68-70 y 291) se registró para un momento temprano de la fase Copo 1 la Estructura 612.
Pero sin duda, es en Tikal donde encontramos los ejemplos de talud con zócalo más parecidos a los registrados en Oxkintok, si bien es cierto que las cronologías no parecen coincidir (Laporte 1987:265-316; 1989:133-141). La estructura que presenta mayores semejanzas con la MA-1 es la 5C-49-5 (Laporte 1989:336-343). En ambos casos, la escalera no tiene alfardas y conduce a un templo de mampostería situado en la cima del basamento. Por otra parte, los tableros se interrumpen en las caras laterales, en el punto donde dan inicio una serie de cuerpos ataludados que se extienden hacia el lado trasero.
Los cambios registrados en esta fase también se extienden a otras manifestaciones culturales. Así, en la cerámica encontramos cambios notables, por ejemplo en la manufactura se incorporan nuevos desgrasantes, aparecen nuevas formas y se observa un predominio de la monocromía sobre la policromía. Con relación a los monumentos esculpidos con inscripciones jeroglíficas se inicia un hiatus que se prolongará hasta el periodo siguiente.
Figura 4 Reconstrucción ideal del estadio 4
Figura 5 Reconstrucción ideal de la Estructura MA-1
FASE NOHEB
Con la fase Noheb (630-740 DC) da inicio el Clásico Tardío. El rasgo más destacado de esta fase es la culminación de las innovaciones técnicas que se habían iniciado en la fase anterior tanto desde el punto de vista cerámico como arquitectónico.
Las construcciones predominantes de este momento son las estructuras de tipo palacio que, generalmente, presentan tres vanos por cada cuarto y una complicada decoración en estuco en el exterior de sus fachadas con motivos geométricos, nunca antropomorfos. Técnicamente las bóvedas y los paramentos son semejantes al estilo Proto Puuc A, pero más depurados y consistentes.
En el Grupo May se definieron dos estadios, el 5 y el 6, obedeciendo esta división a criterios estratigráficos más que a cambios estructurales significativos.
En el estadio 5 la actividad constructiva se concentra principalmente en la Plaza Norte (Figura 6). A ambos lados de la Estructura MA-1 y a dos alturas diferentes se adosan cuatro cuartos con tres vanos y una única estancia. En el templo superior se cierran los vanos laterales y se inutiliza el cuarto sur.
También se construyen las Estructuras MA-11 y MA-12 y en la esquina noroccidental de la Plaza Sur, el MA-13. Los tres edificios tienen características muy semejantes, por no decir idénticas, a las de los cuatro cuartos adosados a la pirámide.
Estos nuevos edificios se organizan en función de un intrincado plan constructivo, por el cual – mediante edificios que se adosan alrededor de la Estructura MA-1 – se forma un complejo arquitectónico que va a constituir el centro neurálgico del grupo hasta su abandono.
En el estadio 6 aparecen dos nuevas construcciones en la Plaza Norte: la Estructura MA-3, que es adosada a la MA-12 y la MA-2, que se localiza en el extremo noroccidental.
Dentro del Grupo Ah Canul encontramos para esta fase la Estructura CA-6 (Vidal 1992) y en el Grupo Dzib se construyen las Estructuras DZ-4 y DZ-5 (García Barrios 1990).
El noroeste de Yucatán se encuentra en este momento en plena efervescencia, es cierto que no será hasta la fase siguiente cuando se alcancen las cotas de máxima construcción, pero sin duda es ahora cuando comienza su despegue decisivo. En Dzibilchaltun se ha podido determinar que gran parte de los edificios pertenecen a la fase Copo 1 definida para el Clásico Tardío (Andrews IV y Andrews V 1980:292).
Pollock (1980) se refiere a numerosas estructuras de diversos sitios en los actuales estados de Campeche y Yucatán que por sus rasgos arquitectónicos se incluirían dentro del estilo Proto Puuc B.
La fase Noheb del periodo Clásico Tardío constituyó un momento importantísimo, desde el punto de vista constructivo, para el centro de la ciudad. En este área se levantaron un gran número de estructuras en los grupos que habían funcionando desde, al menos, el Formativo Tardío (May, Ah Canul, Dzib). Por tanto el rasgo más sobresaliente es el volumen constructivo, pero teniendo en cuenta que estas estructuras se erigen junto a las que ya existían con anterioridad.
FASE UKMUL
En la segunda parte del Clásico Tardío se inicia la fase denominada Ukmul (740-830 DC). El estilo arquitectónico característico es el Puuc Temprano. Las mejoras técnicas del nuevo estilo son importantes y se produce una especialización en los distintos elementos constructivos, como las jambas, las piezas de bóveda o los sillares. Aparece por primera vez el uso de las columnas cilíndricas para delimitar vanos y los espacios interiores en general son más amplios.
En el Grupo May se estableció el estadio 7, durante el cual únicamente se registraron pequeñas modificaciones en las Estructuras MA-2 y MA-11. Este estadio es, pues, poco significativo desde el punto de vista arquitectónico y se podría resumir como una continuación del anterior. Sin embargo, estéticamente se emprende un cambio importante al renovarse toda la decoración de las estructuras de la Plaza Norte con figuras de estuco antropomorfas de rasgos Clásicos.
Figura 6 Reconstrucción ideal del estadio 5
Oxkintok registra importantes construcciones de estilo Puuc Temprano en los Grupos Ah Canul, Millet o en el Palacio Stephens con columnas jeroglíficas. La ciudad crece con la remodelación de antiguos grupos y la construcción de otros nuevos. Durante esta fase parecen ampliarse los horizontes constructivos y se documentan estructuras en nuevas zonas de ocupación, además de en la zona central tradicional.
Como rasgo general podríamos resumir que en la zona Puuc ciudades como Uxmal, Sayil o Kabah, adquieren una relevancia arquitectónica que hasta el momento no habían tenido. Mientras, otras ciudades como Oxkintok registran una importante actividad constructiva pero no alcanza el volumen de las ciudades mencionadas.
FASE NAK
La fase Nak (830-1000 DC) coincide con el periodo Clásico Terminal. Arquitectónicamente se caracterizó por la aparición del estilo Puuc Clásico. Sus características constructivas son muy similares, desde el punto de vista técnico, a las del estilo anterior. Sin embargo, la inclusión de la piedra en la decoración de las fachadas va a diferenciarlo muy claramente del Puuc Temprano.
La actividad constructiva dentro del Grupo May se concentró en la primera parte de esta fase e incluyó los estadios 8 y 9. En el estadio 8 se construye la Plaza Sureste con las Estructuras MA-6, MA-9 y MA-14, todas ellas pertenecientes al estilo arquitectónico Puuc Clásico tipo Junquillo (Figura 7).
En la Plaza Sur aparece la Plataforma MA-8 por el occidente; sobre ella se asentaron, probablemente, estructuras de carácter habitacional. En la Plaza Norte se han recuperado gran número de fragmentos cerámicos, tanto en el derrumbe exterior como en el interior de todas las estructuras, que confirmarían el uso de esta plaza durante el Clásico Terminal, aunque las modificaciones arquitectónicas fueron de poca envergadura.
Desde el punto de vista constructivo observamos en el estadio 9 la aparición de estructuras simples, probablemente, de carácter habitacional (MA-8, MA-11 y las unidades habitacionales adosadas a la Estructura MA-6; Figura 8). La localización preferencial de estas estructuras es el sur del Grupo.
Este patrón de localización de las zonas de residencia en el sur y las zonas ceremoniales y de monumentos esculpidos en el norte ha sido puesto de manifiesto por Ashmore (1989) que señala este comportamiento no sólo a nivel de grupo sino incluso de ciudad.
Lincoln (1990:470-477) identifica en Chichen Itza la Estructura 5D4 como abovedada de tipo palacio y propone una funcionalidad residencial de élite. Este edificio presenta unos elementos y organización similar a la del MA-6.
En Oxkintok tanto en el Grupo Ah Canul, como en el Dzib se realizan diversas remodelaciones en las estructuras preexistentes y se construyen otras nuevas como el DZ-10.
En general la ciudad crece hacia el este y sureste (Grupo Alonso Ponce, Grupo del Enano, Grupo X’Castillo, zona de Kupaloma Naox, etc.), mientras que en el centro se realizan menos construcciones y remodelaciones.
Los sitios secundarios cercanos a Oxkintok también crecieron significativamente, como X’Burrotunich y Kuxub.
En la zona Puuc las ciudades crecen en general de forma espectacular y presentan todas ellas rasgos culturales similares.
La conclusión principal que podemos extraer de lo ocurrido en el May durante este estadio es la pérdida del carácter exclusivamente ceremonial que probablemente tuvo en los últimos cuatro estadios, para pasar a tener un carácter mixto, conjugándose funciones religiosas y residenciales en un mismo complejo arquitectónico.
Tras las últimas modificaciones realizadas en fases tardías del Clásico Terminal, nos encontramos con una serie de actuaciones sobre algunas estructuras que, en la mayoría de los casos, no están asociadas a restos culturales y no podemos datar ni encuadrar en estadios concretos. Son alineamientos de sillares que se interrumpen bruscamente y cuya interpretación resulta prácticamente imposible. Es probable que en algunos casos se trate de modificaciones Postclásicas, como parecen indicar algunos restos cerámicos, pero estos son muy escasos.
Figura 7 Reconstrucción ideal de las estructuras de la Plaza Norte
(Ma-1, Ma-2, Ma-3, Ma-11, Ma-12, Ma-13 y Ma-15)
Figura 8 Reconstrucción ideal del estadio 9
REFERENCIAS
Andrews, E. Wyllys IV y E. Wyllys Andrews V
1980 Excavations at Dzibilchaltun, Yucatan, Mexico. Middle American Research Institute, Pub.48. Tulane University, New Orleans.
Ashmore, Wendy
1989 Construction and Cosmology: Politics and Ideology in Lowland Maya Settlement Patterns. Word and Image in Maya Culture: Explorations in Language, Writing and Representations, editado por W.F. Hanks y D.S. Rice, pp.272-286. University of Utah Press, Salt Lake City.
Becker, Marshall J.
1986 El patrón de asentamiento en Tikal, Guatemala y otros sitios Mayas de las Tierras Bajas: implicación para el cambio cultural. Mayab 2:720.
Fernández Marquínez, M. Yolanda
1992b Excavaciones en el Grupo May, Oxkintok, Yucatán, México. Tesis Doctoral, Universidad Complutense, Madrid.
García Barrios, Ana
1992 Estructura DZ-10 o Juego de Pelota. En Oxkintok 4:93-105. Misión Arqueológica de España en México, Madrid.
Gendrop, Paul
1983 Los Estilos de Río Bec, Chenes y Puuc en la Arquitectura Maya. División de Estudios de Postgrado, Facultad de Arquitectura, Universidad Nacional Autónoma de México, México.
Laporte, Juan Pedro
1987 El TaludTablero en Tikal, Petén: Nuevos Datos. En Homenaje a Román Piña Chan, pp. 265316. Instituto de Investigaciones Antropológicas, Universidad Nacional Autónoma de México, México.
1989 Alternativas del Clásico Temprano en la Relación TikalTeotihuacan: Grupo 6CXVI, Tikal, Petén, Guatemala. Tesis Doctoral, Universidad Nacional Autónoma de México, México.
Ligorred Perramón, Josep
1989 El Grupo Ah Canul: Excavaciones en la Estructura CA-3. En Oxkintok 2:8-17. Misión Arqueológica de España en México, Madrid.
Lincoln, Charles E.
1990 Ethnicity and Social Organization at Chichen Itza, Yucatan, Mexico. Tesis Doctoral, Harvard University, Cambridge.
Pollock, Harry E.D.
1980 The Puuc: An Architectural Survey of the Hill Country of Yucatan and Northern Campeche, Mexico. Memoirs of the Peabody Museum of Archaeology and Ethnology, Vol.19. Harvard University, Cambridge.
Rivera Dorado, Miguel
1987b El Satunsat o Laberinto. En Oxkintok 1:18-29. Misión Arqueológica de España en México, Madrid.
Rivera Dorado, Miguel y Francisco Ferrándiz Martín
1989 Excavaciones en el Satunsat. En Oxkintok 2:63-75. Misión Arqueológica de España en México, Madrid.
Rivera Dorado, Miguel, Antonio Guío y Jacobo Mugarte
1992 Excavaciones en las Estructuras DZ-8 y DZ-15. En Oxkintok 4. Misión Arqueológica de España en México, Madrid.
Valdés, Juan Antonio
1989 Visión evolutiva de Uaxactun a la luz de nuevas investigaciones. Estudios 1/89:53-83. Instituto de Investigaciones, Escuela de Historia, Universidad de San Carlos, Guatemala.
Vidal Lorenzo, Cristina
1992 La pirámide CA-4 del Grupo Ah-Canul. En Oxkintok 4:35-45. Misión Arqueológica de España en México, Madrid.









